Cargando tu pedido...
Pedregal
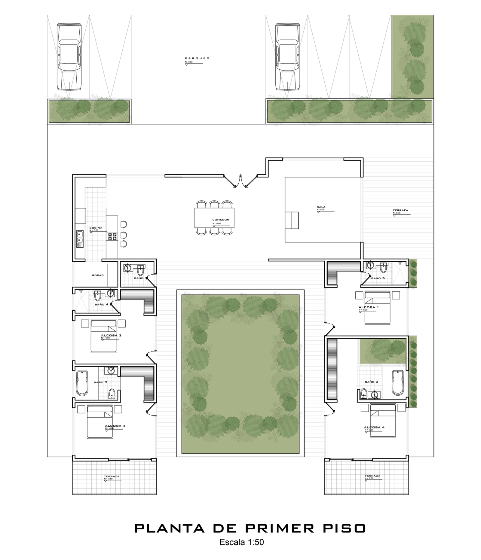
Pedregal es un proyecto de lujo en medio de la naturaleza rodeado por un hermoso riachuelo, dispone de 54000 m2 de terreno, 200 m2 de construcción y más de 250m2 de terrazas, cuenta con 3 habitaciones, 4 baños, salón con cocina americana, y una piscina al aire libre, está ubicado a 40 minutos de Bogotá.
Área construida
- 200 m²
Superficie del terreno
- 5400 m²
Terrazas
- 250 m²
Alcobas
- 3
Baños
- 4
Precio
- Consultar con asistente
Arquitecto
- Sergio Prieto
Interiorista
- Camilo Prieto

